3333 W Center AvenueDenver, CO 80219
Due to the health concerns created by Coronavirus we are offering personal 1-1 online video walkthough tours where possible.




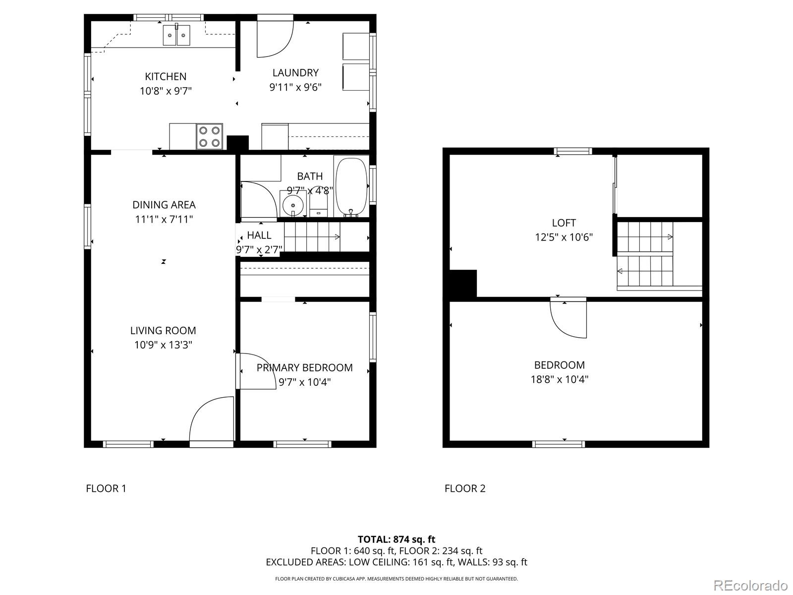
Discover a versatile and charming home at 3333 W Center Ave, offering both comfortable everyday living and compelling long-term value. This 2-bedroom, 1-bath residence features a spacious main-level living area and an additional second-floor loft, creating flexible space for a home office, guest room, creative studio, or extra living area. The home has a cute, welcoming character and a practical layout that feels cozy yet functional—ideal for buyers seeking a simple, well-scaled home with room to personalize. One of the standout features is the exceptionally large 6,650 sq ft lot, which provides a rare sense of openness and privacy for the area. The expansive yard is perfect for gardening, entertaining, pets, or simply enjoying outdoor living, while also offering future potential for expansion or additional improvements. From an investment perspective, the property generates $30,600 in gross annual income with low operating expenses of $7,452 and benefits from a reliable $2,550/month voucher tenant, delivering immediate and consistent cash flow. The lot size and compatible zoning further support value-add opportunities such as building an ADU or additional structures, enhancing long-term returns. Located in a strengthening West Denver submarket, this property offers a rare combination of livable charm, outdoor space, and financial performance. Whether you’re looking for a modest, comfortable home to live in today or a turnkey investment with built-in income and future upside, 3333 W Center Ave delivers flexibility, stability, and opportunity in one appealing package.
| 17 hours ago | Listing updated with changes from the MLS® | |
| 19 hours ago | Listing first seen on site |
The content relating to real estate for sale in this Web site comes in part from the Internet Data eXchange ("IDX") program of METROLIST, INC., DBA RECOLORADO real estate listings held by brokers other than Compass - Denver are marked with the IDX Logo. This information is being provided for the consumers' personal, non-commercial use and may not be used for any other purpose. All information subject to change and should be independently verified.

Did you know? You can invite friends and family to your search. They can join your search, rate and discuss listings with you.